Energy Discovery Centre
Location
Põhja pst 29 and partly Põhja pst 31, Tallinn, Estonia
Area
3840 m2
Status
Completed 2014
Client
Tallinn Technology and Science Centre Foundation
Architecture and interior architecture
LUMIA , Doomino Arhitektid and studio ARGUS
Margit Aule, Sander Aas, Pelle-Sten Viiburg and Margit Argus
Photography
Martin Siplane, Arno Mikkor and Mae Köömnemägi
Awards
2015 - Annual Award 2014−2015 of the Estonian Association of Interior Architects for the best historical interior
2015 - Estonian Annual Museum Awards for 2014: special award of the National Heritage Board and the Heritage Committee of the Museums Board for restoring a museum as a cultural monument
Energy Discovery Centre is situated between the sea and the Old Town of Tallinn, in the complex of a former power station. The turbine and control building of the power plant, which now houses the Energy Discovery Centre, was built in the 1920s and 1930s. Electricity production ended in 1979 here.
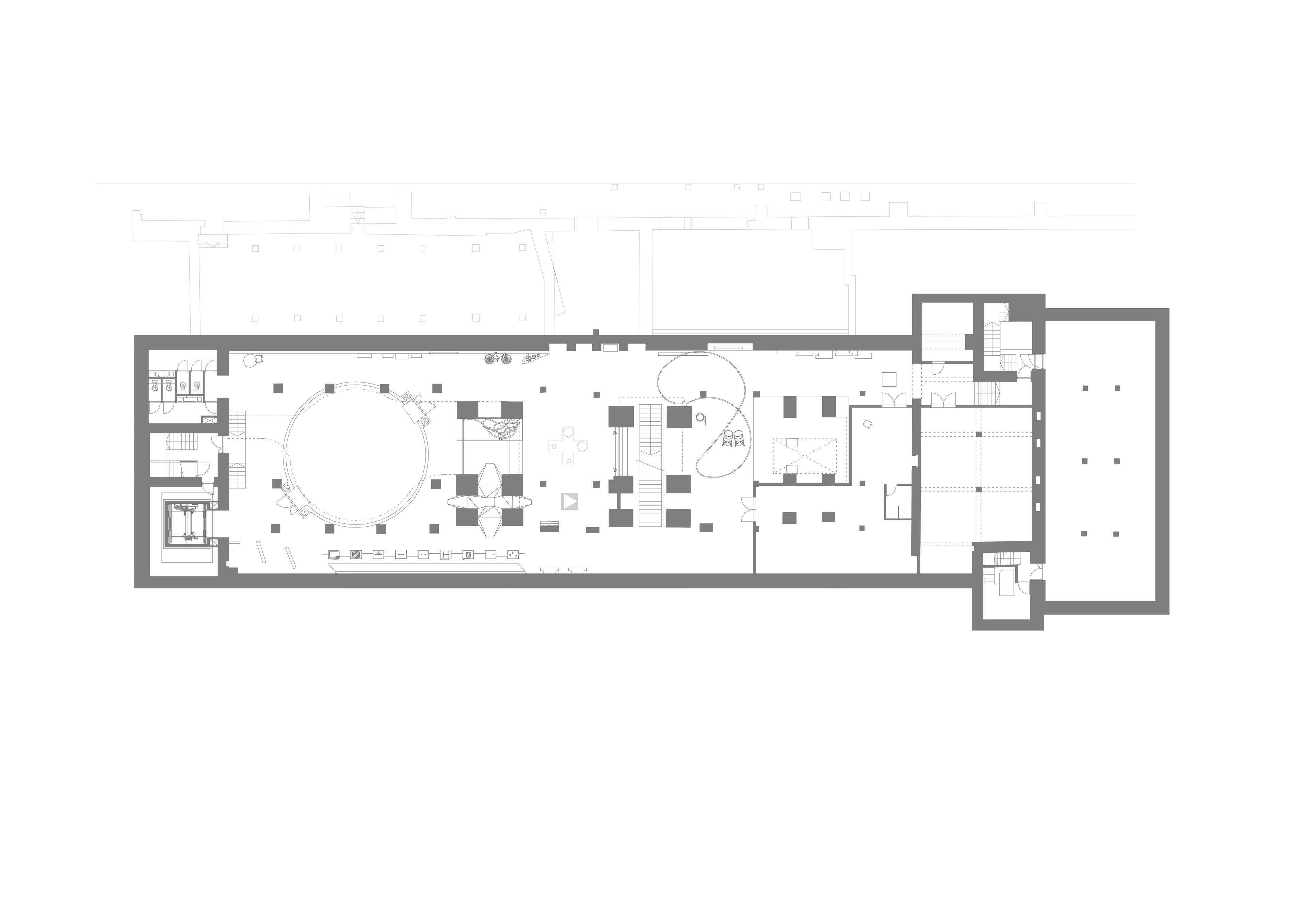
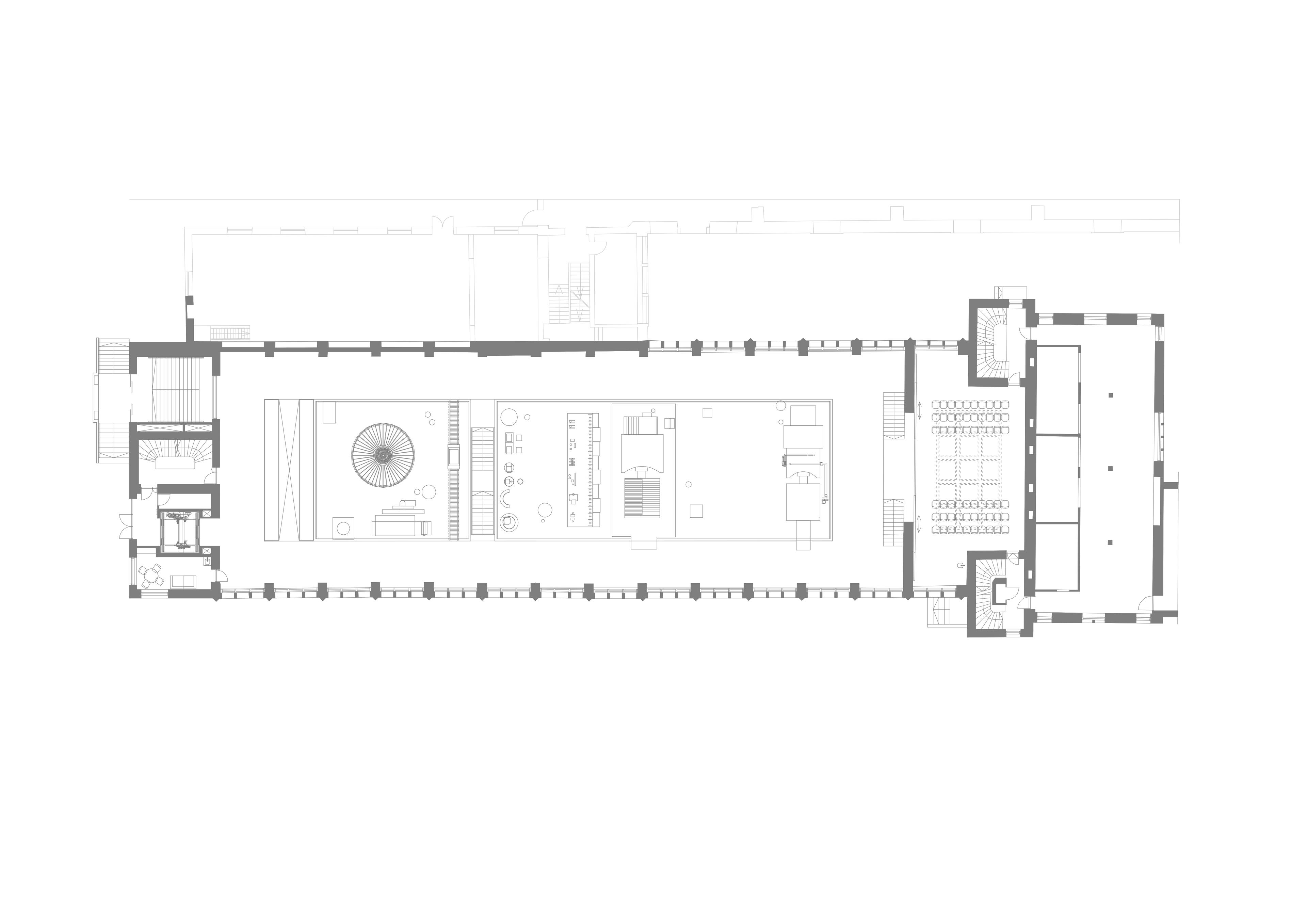
The Energy Discovery Centre was in the same building before its renovation but the conditions used to be Spartan; in winter it was even possible to see blocks of ice on the lowest floor. The entire building had to be renovated thoroughly, which involved changes in the room structure, not to speak of the new technological and exhibition solutions. A planetarium and new atriums were added to the lowest two floors; new stairs were placed between the sturdy columns that support the generators. We exhibited the old installation – the boilers, generators and structures supporting them – in a dignified manner. A new entrance to the building was needed and we decided to place it one floor lower, to the level accommodating the tickets desk, cloakroom, cafeteria and toilets. Thereby we could preserve the historical turbine hall, the gem of the building, in its entirety.
The chic black-and-white turbine hall on Floor 2 got back its beautiful interior. In the middle of the room there is the black platform that we designed for the exhibits: as a result, the new exhibition seems like one big black machine. The space on Floor 1 is vivified by a green floor, which connects renewable energy and other topics into a whole like a landscape. On Floor −1, the yellow, white and black room is for the audio and optical exhibits. That floor also offers the best visibility of the nice concrete columns, exposed to view since the renovation, which support the old generators.










Margit Aule
Partner / Chartered Principal Architect (Level 8) / Chartered Interior (Level 7)