Staadioni 81

  • #Tartu
  • #Estonia
  • #apartment
  • #wood
Staadioni 81

Location

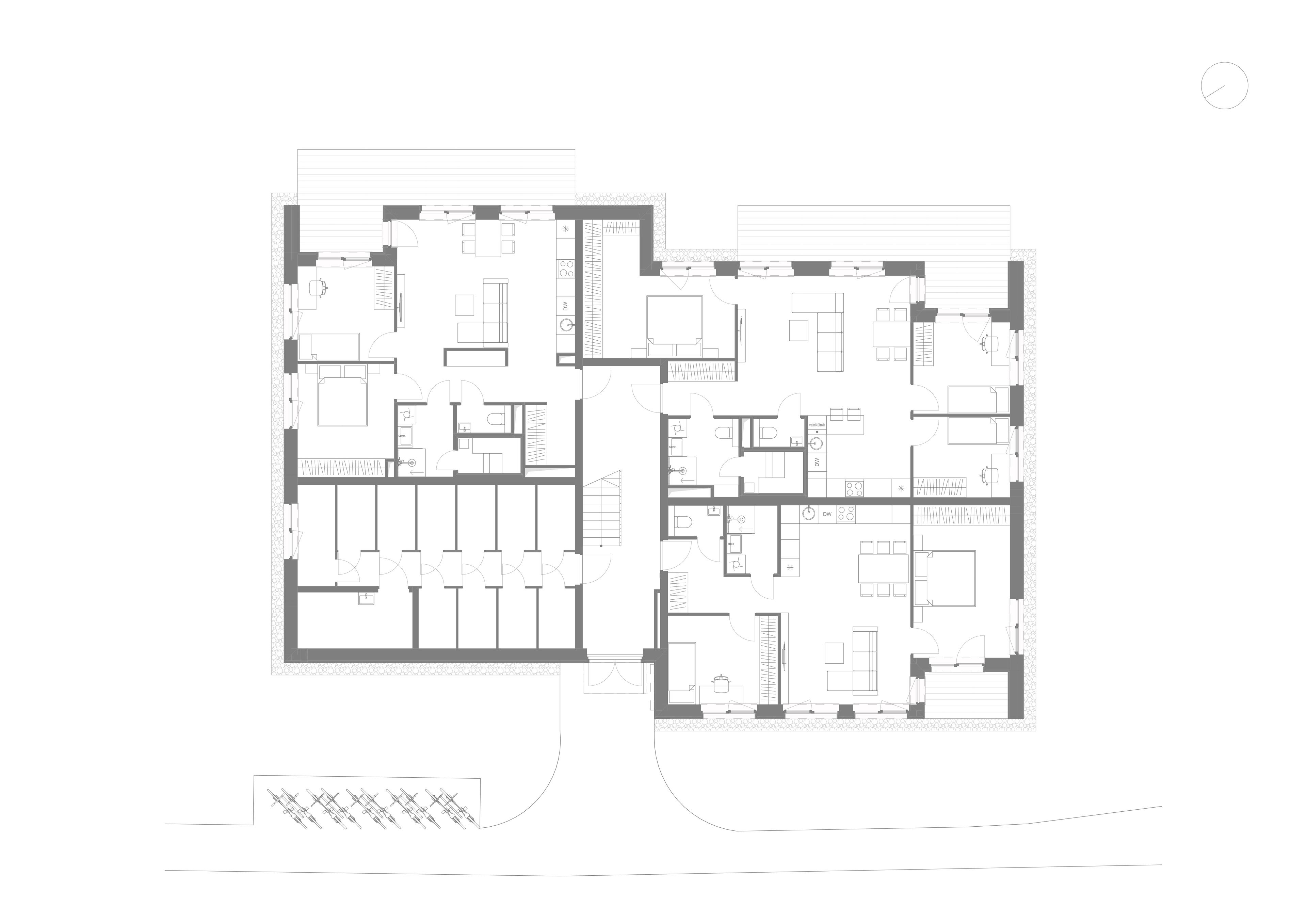
Staadioni 81, Tartu

Area

776 m2

Status

In progress

Architecture

Margit Aule, Katri Vanamets and Moonika Liias

Previous project

Staadioni 83

Next project

Juhkentali 48 competition