Võru State House

  • #Eesti
  • #Võru
  • #reconstruction
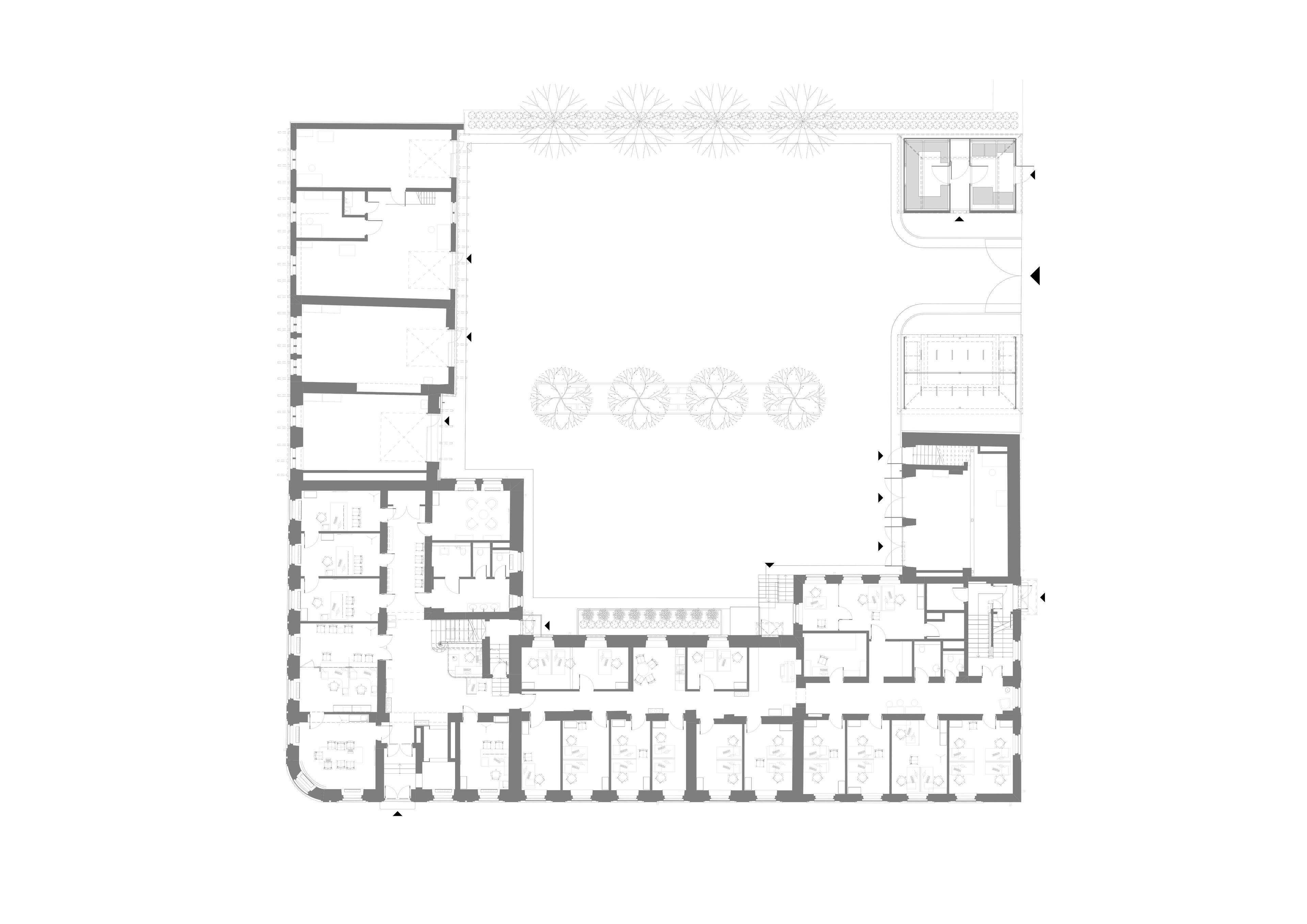
Võru State House

Location

Jüri tn 12, Võru

Area

2645 m2

Status

In progress

Architecture

Andreas Krigoltoi, Margit Aule and Toomas Adrikorn

Interior architecture

KARLERIK TARBE OÜ

Previous project

Tallinn City Life Museum

Next project

Pilgrims’ House